Birch Bay View
As the name suggests, Birch Bay View sits right across the street from Birch Bay with epic views of the water and easy access to the beach. Since the lot is within a tsunami zone, appropriate future-proofing was necessary. In this case, the zoning required that the house be raised 4’ off the ground. Fortunately, this just added more visibility of the scenery. The permitting process, which is always done in-house, took a full year in order to obtain the major variance.
While this home sits high above the water, the clients shared that while demolishing the run-down homemade cabin that used to reside on the lot, they discovered that their cabin, like many cabins on the road, was built on tree stumps instead of a proper foundation. Having such a large foundation on the new house isn’t ideal for the home’s carbon footprint, but at least this one will stand the test of time better than the stumps that came before it.
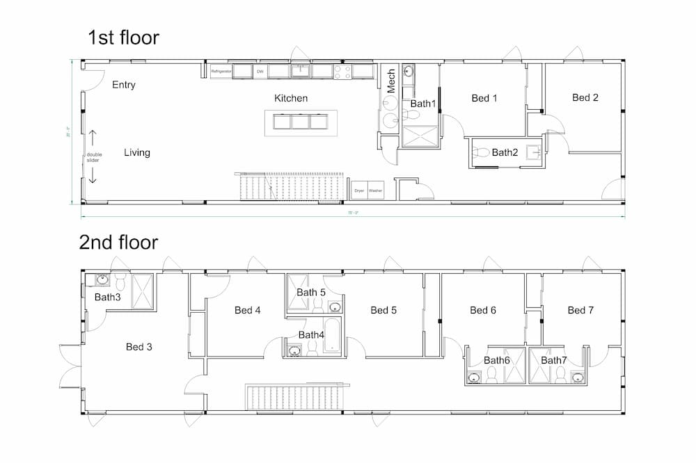
Lovingly nicknamed the trailer house, the lot size required that the house be long and skinny to fit on the infill lot, mimicking the client’s previous vacation trailer home a few lots over where they spent many years visiting while growing up. Birch Bay View was also designed to house the client’s children, grandchildren and friends for years to come. Although the first floor isn’t currently built to accommodate aging-in-place due to the front steps, the first floor is otherwise designed to be accessible when the clients are older. The home was designed to be able to easily install a ramp over the stairs in the future to make it fully accessible.
Specs
- Overview:
- 3000sf SFR
- 7 bedroom, 7 bathroom
- Net zero energy
- Passive solar heating/cooling design
- Insulation: R-29 walls & R-45 ceiling
- Air Sealing: 0.59ACH
- HERS Index: -4
- Certifications: DOE Zero Energy Ready Home certified, ENERGY STAR certified, EPA Indoor airPLUS certified, anticipated Built Green 5-star certified
- Mechanical:
- Ventilation: Fantech Hero 250 with built in HEPA filter. Built-in humidity, temperature, and CO2
- Heating/Cooling: Chilltrix CX-34; hydronic radiant floor heating downstairs and 2 fan coil unit
- PV: 10.32kW solar array with Tesla Powerwall 3 backup battery
- Selections:
- Hardie lap, panel and shingle siding
- T&G cedar soffits
- Taylor Metal Easylock aluminum roofing with Alumiguard coating in Zinc Gray
- Hemlock trim & doors
- VOC and formaldehyde-free hickory flooring — Vintage Natural Hickory Northern Solid Sawn
- Locally made custom cherry shaker cabinets
- Quartzite countertops — MSI Calcatta Abezzo
- LED lighting
- WaterSense plumbing fixtures
- ENERGY STAR appliances and induction range
- Balanced range hood
- No/Low-VOC finishes
- Triple pane, Low-E coated, argon-filled locally manufactured vinyl windows
